Urban Linkage

Located in one of the last available sectors in Barcelona, the Marina Skybridge integrates proposed projects into the urban linkage between Las Ramblas, Montjuic, the seam and Marina del Pratt Vernell. Taking advantage of the potentiality that exists in this developing neighborhood, the bridge has the optimal function in creating architecture that enhances the local community. By mapping out topographical instances, the skybridge was designed to be in harmony with Montjuic, responding directly to its natural environment. With emphasis on environmental sustainability, the skybridge is also at the basis of climate refuge by regarding individual unit shading and expansion mechanisms and re-usable environmental features.

Site: La Marina del Prat Vermell, Barcelona (41.3525 N, 2.1413 E)

diagram section-01.jpg
SITE DIAGRAM SMALL white long -01.jpg
 
AXO LARGE White -01-01.jpg
 
EXPLODED AXO-01.jpg
plans common-01.jpg
SECTION CLIMATE REFUGE white-01.jpg
 
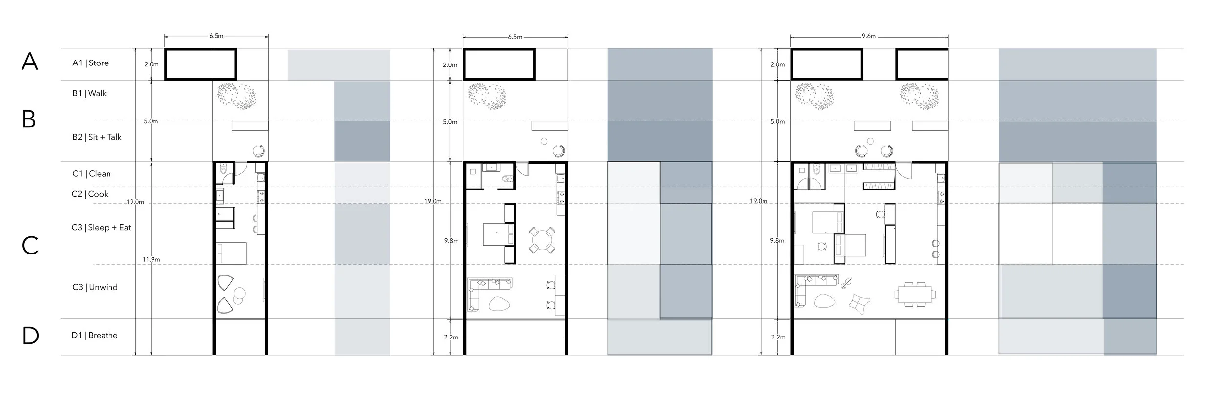
UNIT DIAGRAMS PLAN white-01.jpg
UNITS FINAL SALO -01.jpg
 
VIEW 1_FINAL.jpg